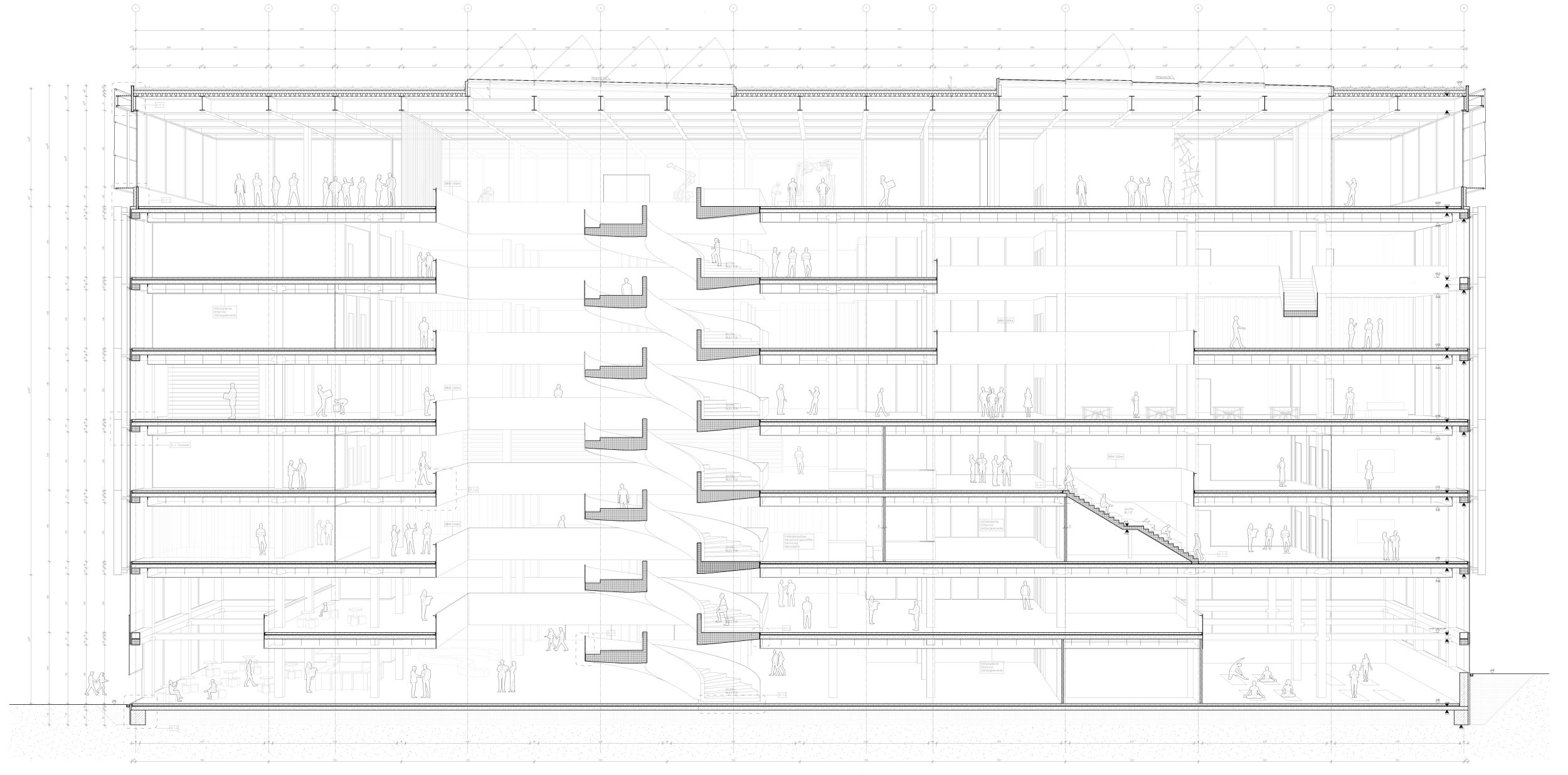
Die Bildungsbauten der letzten Generationen zeichnen sich vor allem durch eine Sache aus: Funktionalität. In klassischen Gangschulen reiht sich an schmalen Fluren strikt Klassenraum an Klassenraum. Eine einfache und günstige Bauweise ermöglichte zudem einen effizienten Bau neuer Schulen.Die Ergebnisse der PISA-Studie 2022 markieren einen Tiefpunkt der letzten zwei Jahrzehnte. Deutschland befindet sich in einer Bildungskriese, die nicht nur auf die Inhalte und Didaktik zurückzuführen ist. Bei Krankenhäusern ist es bekannt, dass eine Umgebung mit viel Tageslicht, natürlichen Materialien und einer ruhigen Raumgestaltung die Genesung von Patienten unterstützt. Die Architektur der Gebäude hat somit direkten Einfluss auf die Nutzer. Bei Schulbauten hat dieser Fakt noch keinen vergleichbaren Stellenwert erlangt – dabei verbringen Kinder und Jugendliche dort oft mehr Zeit als irgendwo sonst. Es wird also höchste Zeit, dass unsere Schulen gestalterisch und atmosphärisch aufgewertet werden. Zudem hinkt das Bildungssystem inhaltlich hinterher – Lehrpläne sind oft nicht mehr zeitgemäß und strukturelle Probleme wie Lehrkräftemangel und soziale Ungleichheit verschärfen die Situation.Deshalb brauchen wir hochwertige , zukunftsfähige Lernräume, die allen zur Verfügung stehen und Kindern und Jugendlichen das Gefühl geben, ernst genommen zu werden.