Innovationszentrum für zukünftige Energiegewinnung am Standort Regatta-Strecke Oberschleißheim
Auf dem historischen Gelände der Regatta-Strecke in Oberschleißheim entsteht ein wegweisendes Innovationszentrum für zukünftige Energiegewinnung. Als Zweigstelle des Deutschen Museums in München wird dieses Zentrum eine Brücke zwischen Vergangenheit und Zukunft schlagen. Der Fokus liegt dabei auf den Quellen erneuerbarer Energien – Sonne, Wind, Wasser und Erde – und bietet Raum für Bildung, Forschung und interaktives Lernen.
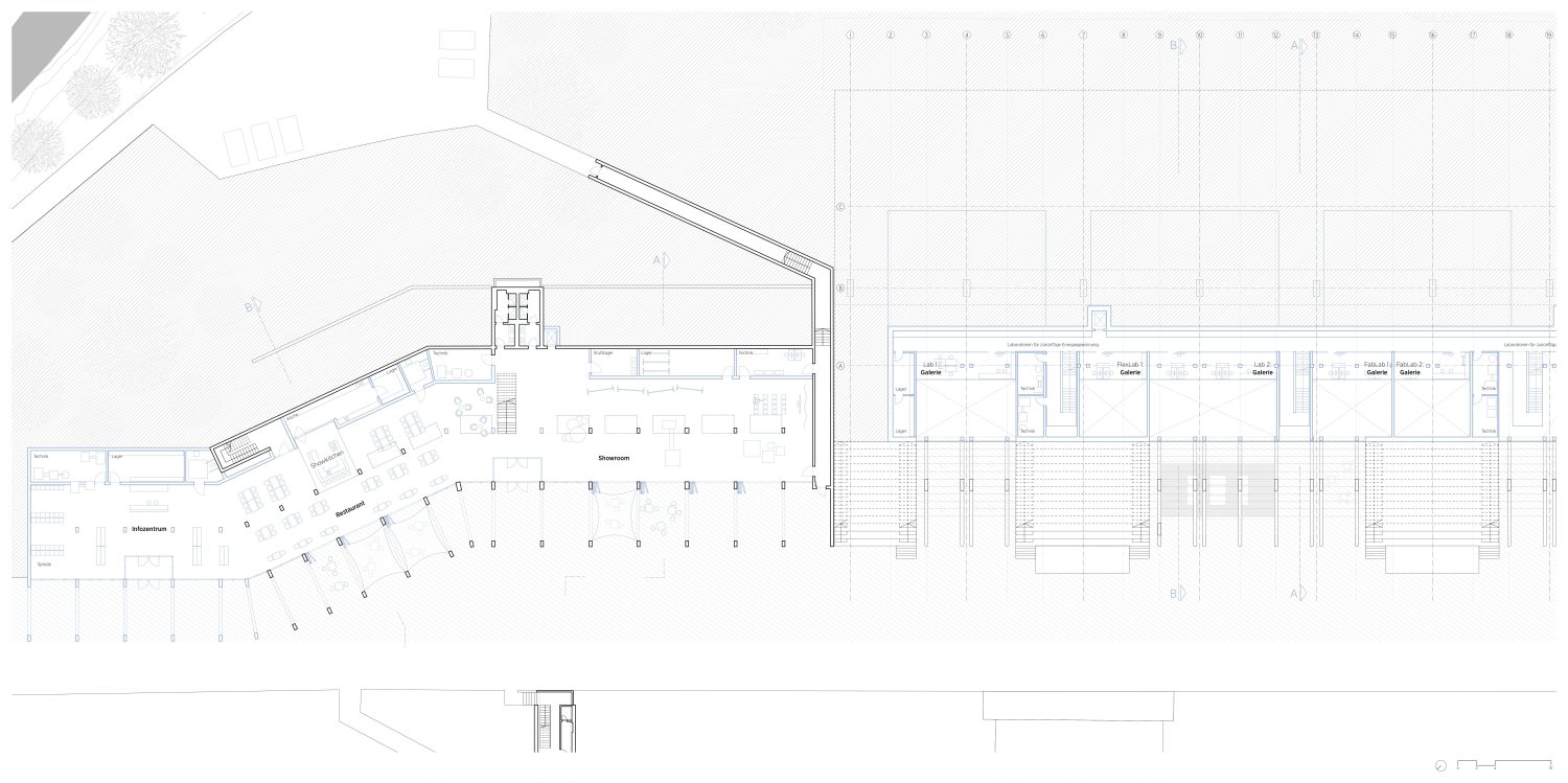
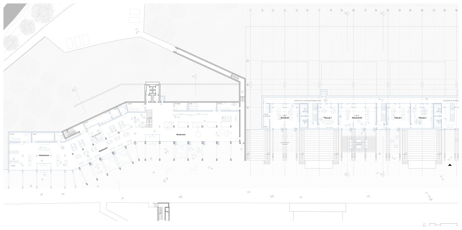
Das Besucherinformationszentrum, entstehend im ehemaligen Jurygebäude, fungiert als Einstiegspunkt für Besucher, die durch das Forschungsareal geführt werden. Hier werden aktuelle Forschungsgebiete anschaulich präsentiert, und die Ausstellungsfläche vermittelt den Besuchern die Vielfalt der Energieforschung. Ein kleines Restaurant lädt zum Verweilen ein. Im ersten Obergeschoss werden die ehemaligen Apartments für Besucher, Tagungsteilnehmer und Forscher wieder reaktiviert.
Die ehemalige Tribüne wird in ein Innovationszentrum für zukünftige Energiegewinnung umgewandelt. Hier entstehen eine Versuchshalle, Laboratorien, Werkstätten sowie Fab-Labs und Flex-Labs für interdisziplinäre Material- und Produktentwicklung. Im Außenbereich wird ein experimentelles Versuchsbecken errichtet. Das Institut beherbergt ein Materialzentrum mit einer Bibliothek und Büros. Das angrenzende Tagungszentrum ermöglicht Workshops, Seminare und Vorträge zu Themen wie erneuerbare Energie und Klimawandel.
Als Pendant zum Zielturm soll ein weiteres, zweites hochbauliches Element entstehen, welches zum einen als Orientierung für die Adressbildung des Campus dienen soll und die notwendige Anlagentechnik des Innovationszentrums beherbergt. Über die Aussichtsplattform ist ein Blick über den gesamten Campus möglich.
Im gesamten Projekt werden die räumlichen Beziehungen des Arealbestands beachtet und wertgeschätzt, um die Zusammengehörigkeit des Ortes zu stärken. Um eine stärkere Verbindung zur Regatta-Strecke herzustellen, werden Öffnungen in Tribüne und Gelände an der Wasserseite hinzugefügt. Die Öffnungen werden hierbei mit begrünten, halb- blickdichten Pergolen versehen, wobei diese als zusätzlich interne Nutzfläche für die Labore genutzt werden. Eine zentrale Öffnung dient dabei als Haupterschließungskern für die Räumlichkeiten. Ziel ist es, Geschichte und Innovation harmonisch miteinander zu verbinden und einen Ort zu schaffen, der nicht nur Wissen vermittelt, sondern auch Inspiration für die Zukunft bietet.