L´École de Ballet MEDICI

Autor:innen
Kevin Richter, Maximilian Beer
Aufgabe
Spiel Räume
Semester
Wintersemester 22/23
Studiengang
Bachelor
Modul
Projekt
Modulbestandteil
B4X00 Projekt

In der Maxvorstadt soll eine neue und innovative Ballettschule entstehen.

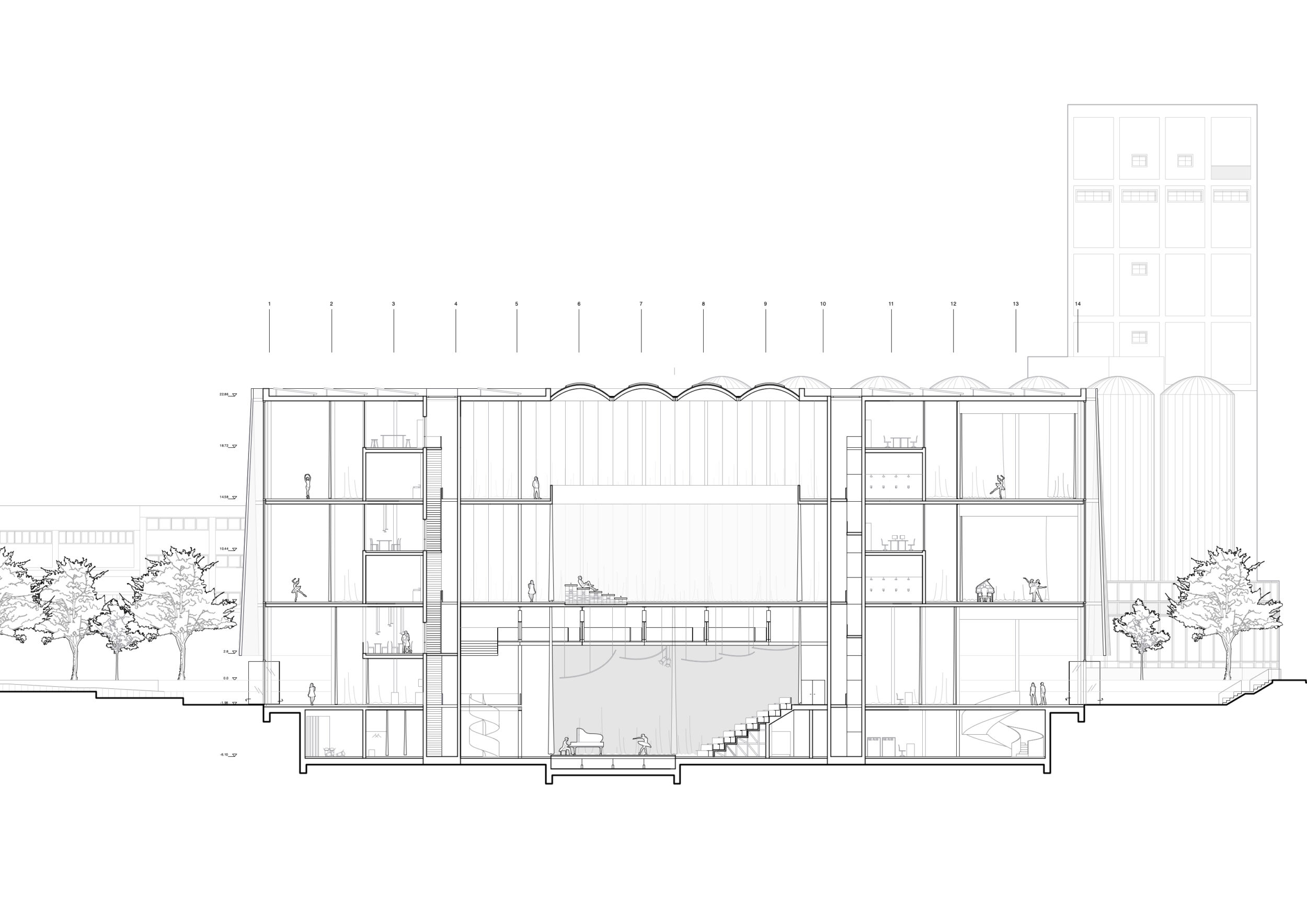
Das Grundelement unseres Entwurfs basiert auf dem Prinzip der Schichtungen, die Raumprägend für den Entwurf sind. Die Schichtungen erzeugen spannende räumliche Zusammenhänge und bieten interessante Atmosphären

Das Highlight der architektonischen Gestalt bildet die vorgehängte Glasfassade, die zu unterschiedlichen Tageszeiten für ein Lichtspiel sorgt und zusätzlich den Bezug von Innen nach Außen vermittelt. Durch die gewählte Bauweise entsteht ein spannendes Verhältnis zwischen der Massivität des Solitärs und der Filigranität der Konstruktion, sowie Licht und Schatten, Verborgenheit und Transparenz.

 

Die Bühne funktioniert in unserer räumlichen Idee als zentrales Moment und als Schnittstelle zwischen öffentlich und halböffentlich. Die Räume der École sortieren sich schichtweise um das Bühnenzentrum, dass das Herzstück des Solitär bildet. Durch das Verwenden von Vorhängen entsteht eine hohe Nutzerindividualität und Flexibilität. Das offene Raumkonzept schafft somit eine gemeinschaftliche Arbeitsatmosphäre für die unterschiedlichen Nutzergruppen und bietet unterschiedliche Plattformen für lebendigen Austausch untereinander.